Varastotila omalla sisäänkäynnillä ja lastauslaiturilla

Harkkokatu 2, Sahanmäen teollisuusalue, Hyvinkää

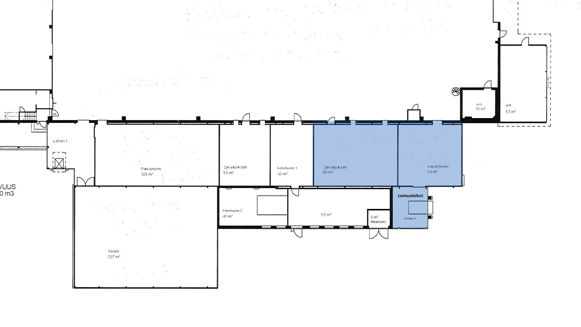
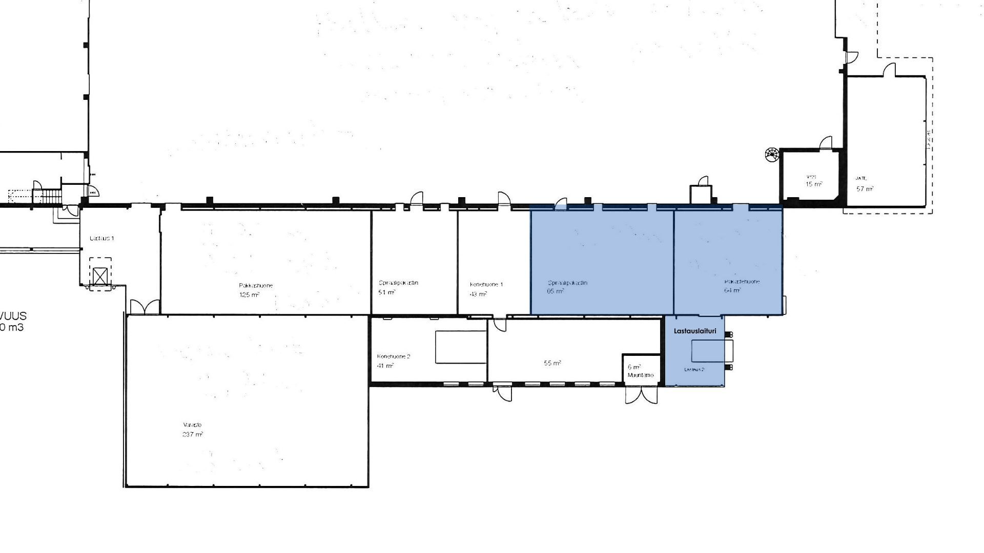
Pinta-ala

149 m²

Hallikokonaisuudesta vapautumassa käytännöllinen varastotila Hyvinkäällä. Tila vapautuu 30.4.

149,6 m² varastotila soveltuu erinomaisesti tavaran, kaluston tai työvälineiden säilytykseen.

Tilassa on oma sisäänkäynti sekä lastauslaituri (22,8 m²), mikä mahdollistaa sujuvan logistiikan ja helpon lastauksen.

Kohde toimii hyvin esimerkiksi yrityksille, jotka tarvitsevat selkeän ja toimivan varastoratkaisun hyvällä saavutettavuudella.

Koko kiinteistö 4470 m². Vuokralla myös isompi 1550 m² hallikokonaisuus.

Rakennuksessa toimii Postin yrityspiste.

Eeva Vanhatalo

Kiinteistöjen vuokraus

Pyydä tarjous

Kartta